Konstrukční detaily

Konstrukční detaily

Omítkové řešení

 Přejít na detaily

ETICS

ETICS Weber therm - schéma rozmístění hmoždinek pro izolační desky 1000×500 mm

ETICS Weber therm - schéma rozmístění hmoždinek pro izolační desky 1000×500 mm

PDF | DWG | DXF | DWF

ETICS Weber therm - kotvení ETICS přes skleněnou síťovinu

ETICS Weber therm - kotvení ETICS přes skleněnou síťovinu

PDF |  DWG | DXF | DWF

ETICS Weber therm - vyztužení hran otvorů, vyztužení rohů otvorů

ETICS Weber therm - vyztužení hran otvorů, vyztužení rohů otvorů

PDFDWG | DXF | DWF

ETICS Weber therm - osazení fasádních dekoračních profilů

ETICS Weber therm - osazení fasádních dekoračních profilů

PDF | DWG | DXF | DWF

ETICS Weber therm - osazení dekoračních profilů z přířezů EPS F

ETICS Weber therm - osazení dekoračních profilů z přířezů EPS F

PDF | DWG | DXF | DWF

ETICS Weber therm - ukončení zateplovacího systému na rovné stěně

ETICS Weber therm - ukončení zateplovacího systému na rovné stěně

PDF DWG | DXF | DWF

ETICS Weber therm - vyztužení rohu rohovým profilem s integrovanou síťovinou

ETICS Weber therm - vyztužení rohu rohovým profilem s integrovanou síťovinou

PDF | DWG | DXF | DWF

ETICS Weber therm - napojení parapetu na zateplovací systém pomocí parapetního profilu

ETICS Weber therm - napojení parapetu na zateplovací systém pomocí parapetního profilu

PDF | DWG | DXF | DWF

ETICS Weber therm - dilatace v ploše s použitím dilatačního profilu "E"

ETICS Weber therm - dilatace v ploše s použitím dilatačního profilu "E"

PDFDWG | DXF | DWF

ETICS Weber therm - dilatace v koutě s použitím dilatačního profilu "V"

ETICS Weber therm - dilatace v koutě s použitím dilatačního profilu "V"

PDFDWG | DXF | DWF

ETICS Weber therm - kotvení balkónového zábradlí

ETICS Weber therm - kotvení balkónového zábradlí

PDFDWG | DXF | DWF

ETICS Weber therm - řešení části fasády na konzole s použitím rohového profilu s okapnicí

ETICS Weber therm - řešení části fasády na konzole s použitím rohového profilu s okapnicí

PDF | DWG | DXF | DWF

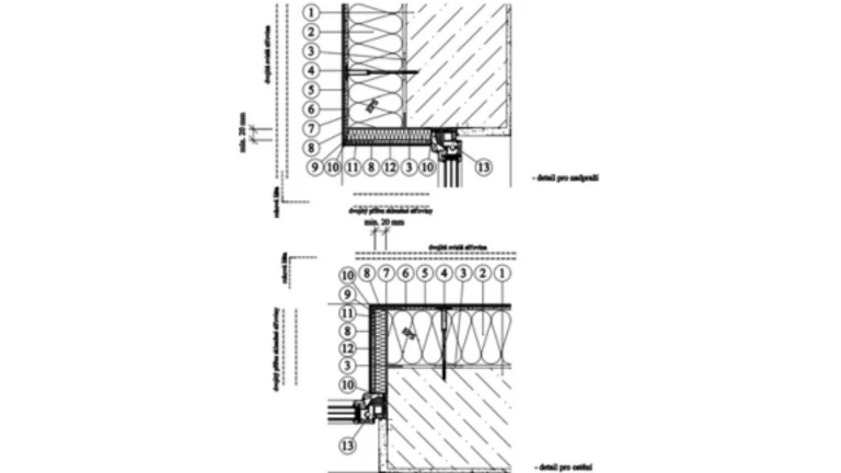
ETICS Weber therm - napojení zateplení ostění na rám okna

ETICS Weber therm - napojení zateplení ostění na rám okna

PDF | DWG | DXF | DWF

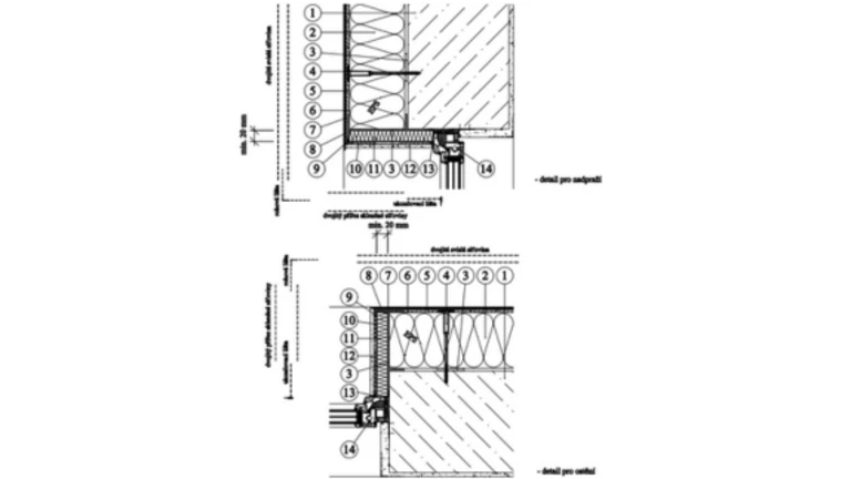
ETICS Weber therm - napojení zateplovacího systému na konstrukci venkovní rolety

ETICS Weber therm - napojení zateplovacího systému na konstrukci venkovní rolety

PDF | DWG | DXF | DWF

ETICS Weber therm - zateplení ostění a parapetu okna

ETICS Weber therm - zateplení ostění a parapetu okna

PDF DWG | DXF | DWF

ETICS Weber therm - zateplení parapetu s použitím kamenné parapetní desky

ETICS Weber therm - zateplení parapetu s použitím kamenné parapetní desky

PDF DWG | DXF | DWF

ETICS Weber therm - otevřený průjezd se zateplením

ETICS Weber therm - otevřený průjezd se zateplením

PDF DWG | DXF | DWF

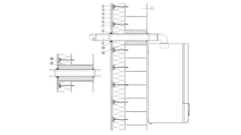
ETICS Weber therm - odkouření přes stěnu

ETICS Weber therm - odkouření přes stěnu

PDF | DWG | DXF | DWF

ETICS Weber therm - napojení na konstrukci roletové schránky

ETICS Weber therm - napojení na konstrukci roletové schránky

PDF | DWG | DXF | DWF

ETICS Weber therm - napojení na konstrukci žaluziové schránky

ETICS Weber therm - napojení na konstrukci žaluziové schránky

PDF | DWG | DXF | DWF

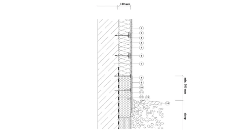
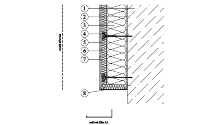
ETICS Weber therm - zateplení soklu - průběžný

ETICS Weber therm - zateplení soklu - průběžný

PDF | DWG | DXF | DWF

ETICS Weber therm - založení zateplovacího systému bez soklového profilu s použitím montážní latě

ETICS Weber therm - založení zateplovacího systému bez soklového profilu s použitím montážní latě

PDF | DWG | DXF | DWF

ETICS Weber therm - schéma rozmístění hmoždinek pro izolační desky 1000x600 mm

ETICS Weber therm - schéma rozmístění hmoždinek pro izolační desky 1000x600 mm

PDF | DWG | DXF | DWF

ETICS Weber therm style - spára mezi tabulemi - tepelně tvrzené bezpečnostní sklo EMALI EVOLUTION tl. 6 mm

ETICS Weber therm style - spára mezi tabulemi - tepelně tvrzené bezpečnostní sklo EMALI EVOLUTION tl. 6 mm

PDF | DWG | DXF | DWF

ETICS Weber therm - založení zateplovacího systému pomocí soklového profilu

ETICS Weber therm - založení zateplovacího systému pomocí soklového profilu

PDF | DWG | DXF | DWF

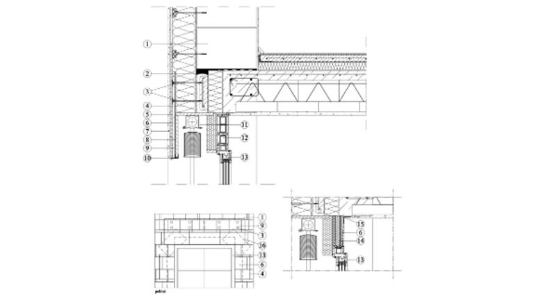
ETICS Weber therm - napojení zateplovacího systému na konstrukci balkonu

ETICS Weber therm - napojení zateplovacího systému na konstrukci balkonu

PDF | DWG | DXF | DWF

ETICS Weber therm - napojení zateplovacího systému na konstrukci balkonu

ETICS Weber therm - napojení zateplovacího systému na konstrukci balkonu

PDF | DWG | DXF | DWF

odolnost proti působení krupobití HW / HIR 5

ETICS Weber therm flex E, weber therm flex E minerál- odolnost proti působení krupobití HW / HIR 5

PDF | DWG | DXF | DWF

odolnost proti působení krupobití HW  HIR 3_1

ETICS Weber therm flex E, weber therm flex E minerál- odolnost proti působení krupobití HW / HIR 3

PDF | DWG | DXF | DWF

odolnost proti působení krupobití HW / HIR 3_2

ETICS Weber therm TOP E, weber therm TOP E minerál- odolnost proti působení krupobití HW / HIR 3

PDF | DWG | DXF | DWF

Sokly

ETICS Weber therm - sokl zateplený zapuštěný

ETICS Weber therm - sokl zateplený zapuštěný

PDF | DWG | DXF | DWF

ETICS Weber therm - sokl zateplený lícovaný

ETICS Weber therm - sokl zateplený lícovaný

PDF | DWG | DXF | DWF

ETICS Weber therm - styk soklu s terénem

ETICS Weber therm - styk soklu s terénem

PDF | DWG | DXF | DWF

styk soklu s terénem - hydroizolační stěrka

ETICS Weber therm - styk soklu s terénem- hydroizolační stěrka

PDF | DWG | DXF | DWF

ETICS Weber therm - zateplení soklu - škvárobetonová tvárnice 300 a 450 mm

ETICS Weber therm - zateplení soklu - škvárobetonová tvárnice 300 a 450 mm

PDF | DWG | DXF | DWF

ETICS Weber therm - zateplení soklu - plynosilikát do r. 1989 240, 365 a 440 mm

ETICS Weber therm - zateplení soklu - plynosilikát do r. 1989 240, 365 a 440 mm

PDF| DWG | DXF | DWF

ETICS Weber therm - zateplení soklu - cihla děrovaná CDm 240 a 365 mm

ETICS Weber therm - zateplení soklu - cihla děrovaná CDm 240 a 365 mm

PDF | DWG | DXF | DWF

ETICS Weber therm - zateplení soklu - tvárnice CD Týn 290 a 365 mm

ETICS Weber therm - zateplení soklu - tvárnice CD Týn 290 a 365 mm

PDF | DWG | DXF | DWF

 

ETICS Weber therm - zateplení soklu - cihelné thermo bloky 240, 365, 440 mm

ETICS Weber therm - zateplení soklu - cihelné thermo bloky 240, 365, 440 mm

PDF | DWG | DXF | DWF

ETICS Weber therm - sokl nezateplený zapuštěný

ETICS Weber therm - sokl nezateplený zapuštěný

PDF DWG | DXF | DWF

ETICS Weber therm - sokl - třída reakce na oheň A1- detail soklové části (s vytápěným suterénem) s průběžnou povrchovou úpravou

ETICS Weber therm - sokl - třída reakce na oheň A1- detail soklové části (s vytápěným suterénem) s průběžnou povrchovou úpravou

PDF | DWG | DXF | DWF

ETICS Weber therm - sokl - třída reakce na oheň A1- detail soklové části (s vytápěným suterénem) se změnou tloušťky izolace

ETICS Weber therm - sokl - třída reakce na oheň A1- detail soklové části (s vytápěným suterénem) se změnou tloušťky izolace

PDF  | DWG | DXF | DWF

ETICS Weber therm - sokl - třída reakce na oheň A1- detail soklové části (bez vytápěného suterénu) s průběžnou povrchovou úpravou

ETICS Weber therm - sokl - třída reakce na oheň A1- detail soklové části (bez vytápěného suterénu) s průběžnou povrchovou úpravou

PDF | DWG | DXF | DWF

ETICS Weber therm - sokl - třída reakce na oheň A1- detail soklové části (bez vytápěného suterénu) se změnou tloušťky izolace

ETICS Weber therm - sokl - třída reakce na oheň A1- detail soklové části (bez vytápěného suterénu) se změnou tloušťky izolace

PDF | DWG | DXF | DWF

ETICS Weber therm - napojení ETICS na soklovou část předsazený sokl

ETICS Weber therm - napojení ETICS na soklovou část předsazený sokl

PDF | DWG | DXF | DWF

ETICS Weber therm - zateplení soklu - plná cihla 300 a 450 mm

ETICS Weber therm - zateplení soklu - plná cihla 300 a 450 mm

PDF | DWG | DXF | DWF

Střechy

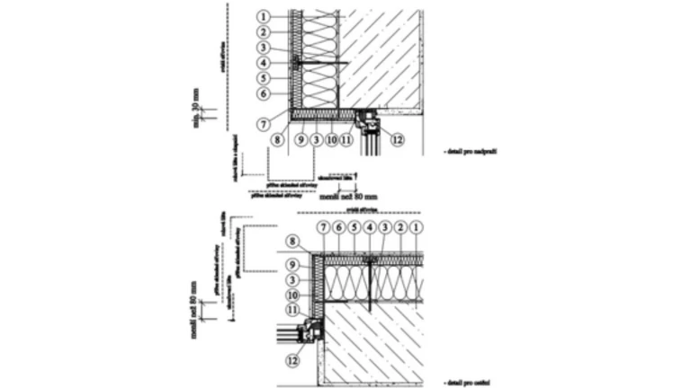
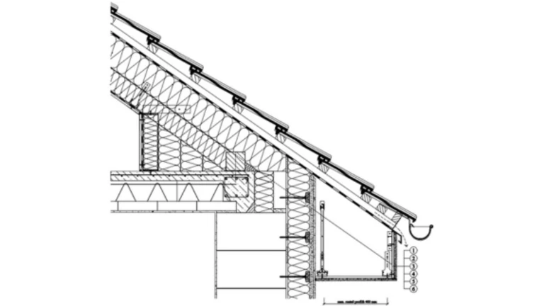
ETICS Weber therm - napojení zateplovacího systému na konstrukci střechy

ETICS Weber therm - napojení zateplovacího systému na konstrukci střechy

PDF | DWG | DXF | DWF

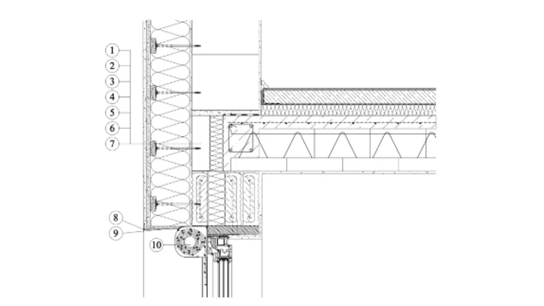
ETICS Weber therm - napojení zateplovacího systému na konstrukci ploché střechy

ETICS Weber therm - napojení zateplovacího systému na konstrukci ploché střechy

PDF | DWG | DXF | DWF

ETICS Weber therm - napojení zateplovacího systému na konstrukci neodvětrané střechy

ETICS Weber therm - napojení zateplovacího systému na konstrukci neodvětrané střechy

PDF | DWG | DXF | DWF

ETICS Weber therm - napojení zateplovacího systému na konstrukci odvětrané střechy

ETICS Weber therm - napojení zateplovacího systému na konstrukci odvětrané střechy

PDF | DWG | DXF | DWF

Weber - hydroizolace pro zelené střechy - základní skladba - weberdry PUR seal

Weber - hydroizolace pro zelené střechy - základní skladba - weberdry PUR bitumen

PDF | DWG | DXF | DWF

Weber - polyuretanový hydroizolační systém - ploché střechy

Weber - polyuretanový hydroizolační systém - ploché střechy

PDF | DWG | DXF | DWF

Weber - polyuretanový hydroizolační systém - pochozí ploché střechy

Weber - polyuretanový hydroizolační systém - pochozí ploché střechy

PDF | DWG | DXF | DWF

Polyuretanový hydroizolační systém plochá střecha dle ETAG 005 - pochozí střechy, obrácené střechy, zelené střechy

Polyuretanový hydroizolační systém plochá střecha dle ETAG 005 - pochozí střechy, obrácené střechy, zelené střechy

PDF | DWG | DXF | DWF

Weber - polyuretanový hydroizolační systém - střešní roh

Weber - polyuretanový hydroizolační systém - detail atiky na ploché střeše

PDF | DWG | DXF | DWF

Weber - polyuretanový hydroizolační systém - prostup střechy

Weber - polyuretanový hydroizolační systém - prostup střechy

PDF | DWG | DXF | DWF

Weber - polyuretanový hydroizolační systém - hydroizolace pojízdné ploché střechy

Weber - polyuretanový hydroizolační systém - hydroizolace pojízdné ploché střechy

PDF | DWG | DXF | DWF

58 kon.det.

Weber - ploché střechy - hydroizolace pro zelené střechy - extenzivní zelená střecha

PDF | DWG | DXF | DWF

59 kon.det.M2

Weber - ploché střechy - hydroizolace pro zelené střechy -extenzivní zelená střecha s kačírkem

PDF | DWG | DXF | DWF

60 kon.det.

Weber - ploché střechy - hydroizolace pro zelené střechy - extenzivní zelená střecha s kačírkem - fotovoltaický panel čelní pohled

PDF | DWG | DXF | DWF

61 kon.det.M

Weber - ploché střechy - hydroizolace pro zelené střechy - extenzivní zelená střecha s kačírkem - fotovoltaický panel boční pohled

PDF | DWG | DXF | DWF

62 kon.det.

Weber - ploché střechy - hydroizolace pro zelené střechy - extenzivní zelená střecha - fotovoltaický panel čelní pohled

PDF | DWG | DXF | DWF

63 kon.det.M

Weber - ploché střechy - hydroizolace pro zelené střechy - extenzivní zelená střecha - fotovoltaický panel boční pohled

PDF | DWG | DXF | DWF

Balkony

Balkony a lodžie Weber - řez balkonem - hydroizolace - terizol

Balkony a lodžie Weber - řez balkonem - hydroizolace - terizol

PDF | DWG | DXF | DWF

Balkony a lodžie Weber - dilatace - hydroizolace - terizol

Balkony a lodžie Weber - dilatace - hydroizolace - terizol

PDF | DWG | DXF | DWF

Balkony a lodžie Weber - řez balkonem - dodatečné zateplení - terizol

Balkony a lodžie Weber - řez balkonem - dodatečné zateplení - terizol

PDF | DWG | DXF | DWF

Balkony a lodžie Weber - roh při soklu balkonu - hydroizolace - terizol - ukončeno trvale pružným tmelem

Balkony a lodžie Weber - roh při soklu balkonu - hydroizolace - terizol - ukončeno trvale pružným tmelem

PDF | DWG | DXF | DWF

Balkony a lodžie Weber - roh při soklu balkonu - hydroizolace - terizol - ukončovací profil

Balkony a lodžie Weber - roh při soklu balkonu - hydroizolace - terizol - ukončovací profil

PDF | DWG | DXF | DWF

Balkony a lodžie Weber - ukončení balkonu - hydroizolace - terizol

Balkony a lodžie Weber - ukončení balkonu - hydroizolace - terizol

PDF | DWG | DXF | DWF

Balkony a lodžie Weber - roh při soklu balkonu - ukončeno trvale pružným tmelem

Balkony a lodžie Weber - roh při soklu balkonu - ukončeno trvale pružným tmelem

PDF | DWG | DXF | DWF

Balkony a lodžie Weber - dilatace

Balkony a lodžie Weber - dilatace

PDF | DWG | DXF | DWF

Balkony a lodžie Weber - ukončení balkonu

Balkony a lodžie Weber - ukončení balkonu

PDF | DWG | DXF | DWF

Balkony a lodžie Weber - řez balkonem

Balkony a lodžie Weber - řez balkonem

PDF | DWG | DXF | DWF

Balkony a lodžie Weber - dilatace - s použitím dilatačních profilů

Balkony a lodžie Weber - dilatace - s použitím dilatačních profilů

PDF | DWG | DXF | DWF

Balkony a lodžie Weber - řez balkonem - dodatečné zateplení

Balkony a lodžie Weber - řez balkonem - dodatečné zateplení

PDF | DWG | DXF | DWF

Polyuretanový hydroizolační systém - balkony, terasy povrch s normálním zatížením (domácí balkon)

Polyuretanový hydroizolační systém - balkony, terasy povrch s normálním zatížením (domácí balkon)

PDF | DWG | DXF | DWF

Polyuretanový hydroizolační systém - balkony a terasy

Polyuretanový hydroizolační systém - balkony a terasy

PDF | DWG | DXF | DWF

Polyuretanový hydroizolační systém - balkony, terasy povrch s normálním zatížením (pro komerční výstavbu)

Polyuretanový hydroizolační systém - balkony, terasy povrch s normálním zatížením (pro komerční výstavbu)

PDF | DWG | DXF | DWF

Dle ČSN 730810

ETICS weber therm - detail založení se zakládací sadou PKO-23-002

ETICS weber therm - detail založení se zakládací sadou PKO

PDF | DWG | DXF | DWF

ETICS Weber therm - detail založení pásem minerální vlny MW PKO-23-011

ETICS Weber therm - detail založení pásem minerální vlny MW PKO

PDF | DWG | DXF | DWF

ETICS Weber therm plus ultra - detail založení PKO-21-013

ETICS Weber therm plus ultra - detail založení PKO

PDF | DWG | DXF | DWF

ETICS weber therm twinner - detail založení PKO-23-020

ETICS weber therm twinner - detail založení PKO

PDF | DWG | DXF | DWF

ETICS Weber therm - detail nadpraží s pásem minerální vlny MW PKO-23-09

ETICS Weber therm - detail nadpraží s pásem minerální vlny MW PKO

PDF | DWG | DXF | DWF

ETICS weber therm - detail s prefabrikovaným nadpražím a ostěním PKO-23-008

ETICS weber therm - detail s prefabrikovaným nadpražím a ostěním PKO

PDF | DWG | DXF | DWF

ETICS weber therm - detail nadpraží a ostění s pásem minerální vlny PKO-23-005

ETICS weber therm - detail nadpraží a ostění s pásem minerální vlny PKO

PDF | DWG | DXF | DWF

ETICS weber therm - detail nadpraží a ostění s vloženým pásem minerální vlny PKO-23-004

ETICS weber therm - detail nadpraží a ostění s vloženým pásem minerální vlny PKO

PDF | DWG | DXF | DWF

ETICS Weber therm - detail nadpraží s pásem minerální vlny MW PKO-23-010

ETICS Weber therm - detail nadpraží s pásem minerální vlny MW PKO

PDF | DWG | DXF | DWF

ETICS Weber therm plus ultra - detail nadpraží PKO-21-013

ETICS Weber therm plus ultra - detail nadpraží PKO

PDF | DWG | DXF | DWF

ETICS weber therm twinner - detail nadpraží a ostění šířky nad 80 mm PKO-23-020

ETICS weber therm twinner - detail nadpraží a ostění šířky nad 80 mm PKO

PDF | DWG | DXF | DWF

ETICS weber therm twinner - detail nadpraží a ostění šířky do 80 mm PKO-23-020

ETICS weber therm twinner - detail nadpraží a ostění šířky do 80 mm PKO

PDF | DWG | DXF | DWF

ETICS weber therm twinner - detail nadpraží a ostění, okno lícující se stěnou PKO-23-020

ETICS weber therm twinner - detail nadpraží a ostění, okno lícující se stěnou PKO

PDF | DWG | DXF | DWF

ETICS Weber therm style - detail nadpraží a ostění s pásem minerální vlny - tepelně tvrzené bezpečnostní sklo EMALI EVOLUTION tl. 6 mm PKO-23-12

ETICS Weber therm style - detail nadpraží a ostění s pásem minerální vlny a omítkou - tepelně tvrzené bezpečnostní sklo EMALI EVOLUTION tl. 6 mm PKO

PDF | DWG | DXF | DWF

ETICS Weber therm style - detail nadpraží a ostění s pásem minerální vlny a sklem - tepelně tvrzené bezpečnostní sklo EMALI EVOLUTION tl. 6 mm PKO-23-12

ETICS Weber therm style - detail nadpraží a ostění s pásem minerální vlny a sklem - tepelně tvrzené bezpečnostní sklo EMALI EVOLUTION tl. 6 mm PKO

PDF | DWG | DXF | DWF

ETICS Weber therm style - detail založení pásem minerální vlny - tepelně tvrzené bezpečnostní sklo EMALI EVOLUTION tl. 6 mm PKO-23-12

ETICS Weber therm style - detail založení pásem minerální vlny - tepelně tvrzené bezpečnostní sklo EMALI EVOLUTION tl. 6 mm PKO

PDF | DWG | DXF | DWF

Podlahy

Weber podlahy – aplikace dlažby na dřevotřískovou desku

Weber podlahy – aplikace dlažby na dřevotřískovou desku

PDF | DWG | DXF | DWF

Weber podlahy - pokládka dlažby na dlažbu

Weber podlahy - pokládka dlažby na dlažbu

PDF | DWG | DXF | DWF

Weber podlahy - aplikace rohových pásků BE 14

Weber podlahy - aplikace rohových pásků BE 14

PDF | DWG | DXF | DWF

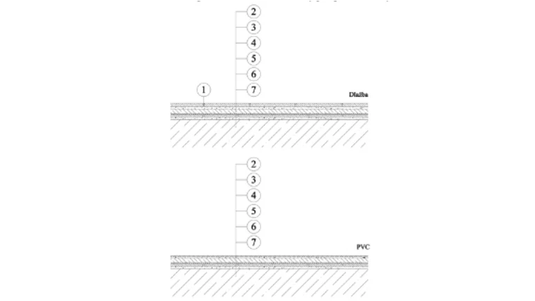
Weber podlahy - aplikace nivelační hmoty na nesavý podklad - dlažba nebo PVC

Weber podlahy - aplikace nivelační hmoty na nesavý podklad - dlažba nebo PVC

PDF | DWG | DXF | DWF

Weber podlahy - skladba podlahy s teplovodním podlahovým topením

Weber podlahy - skladba podlahy s teplovodním podlahovým topením

PDF | DWG | DXF | DWF

Weber podlahy - skladba podlahy s elektrickým podlahovým vytápěním

Weber podlahy - skladba podlahy s elektrickým podlahovým vytápěním

PDF | DWG | DXF | DWF

Weber podlahy - skladba podlahy s epoxidovou nášlapnou vrstvou

Weber podlahy - skladba podlahy s epoxidovou nášlapnou vrstvou

PDF | DWG | DXF | DWF

Weber podlahy - lepení keramické dlažby v dřevostavbách

Weber podlahy - lepení keramické dlažby v dřevostavbách

PDF | DWG | DXF | DWF

Weber podlahy - hydroizolace koupelen a sprchových koutů - detail vpusti

Weber podlahy - hydroizolace koupelen a sprchových koutů - detail vpusti

PDF | DWG | DXF | DWF

Weber podlahy - hydroizolace podlahy v koupelně - Rigidur

Weber podlahy - hydroizolace podlahy v koupelně - Rigidur

PDF | DWG | DXF | DWF

Weber podlahy - hydroizolace podlahy v koupelně - Rigistabil

Weber podlahy - hydroizolace podlahy v koupelně - RigiStabil 

PDF | DWG | DXF | DWF

Weber - hydroizolace koupelen a sprchových koutů - SDK konstrukce

Weber - hydroizolace koupelen a sprchových koutů - SDK konstrukce

PDF | DWG | DXF | DWF

Weber podlahy - hydroizolace podlahy v koupelně - SDK konstrukce - odtok

Weber podlahy - hydroizolace podlahy v koupelně - SDK konstrukce - odtok

PDF | DWG | DXF | DWF

Weber - hydroizolace koupelen a sprchových koutů - zděná konstrukce

Weber - hydroizolace koupelen a sprchových koutů - zděná konstrukce

PDF | DWG | DXF | DWF

Weber podlahy - hydroizolace podlahy v koupelně - zděná konstrukce - odtok

Weber podlahy - hydroizolace podlahy v koupelně - zděná konstrukce - odtok

PDF | DWG | DXF | DWF

Weber podlahy - aplikace nivelační hmoty na savý betonový podklad - dlažba nebo PVC

Weber podlahy - aplikace nivelační hmoty na savý betonový podklad - dlažba nebo PVC

PDF | DWG | DXF | DWF

Weber průmyslové podlahy, garáže - Parking I - statické přemostění trhlin do 0,5 mm dle ČSN EN 1062-7

Weber průmyslové podlahy, garáže - Parking I - statické přemostění trhlin do 0,5 mm dle ČSN EN 1062-7

PDF | DWG | DXF | DWF

Weber průmyslové podlahy, garáže - Parking II - dynamické přemostění trhlin do 0,3 mm, statické do 1,25 mm dle ČSN EN 1062-7

Weber průmyslové podlahy, garáže - Parking II - dynamické přemostění trhlin do 0,3 mm, statické do 1,25 mm dle ČSN EN 1062-7

PDF | DWG | DXF | DWF

Weber průmyslové podlahy, garáže - Parking III - dynamické přemostění trhlin do 0,5 mm, statické do 1,25 mm dle ČSN EN 1062-7

Weber průmyslové podlahy, garáže - Parking III - dynamické přemostění trhlin do 0,5 mm, statické do 1,25 mm dle ČSN EN 1062-7

PDF | DWG | DXF | DWF

Weber podlahy - skladba podlahy s hydroizolační membránou weberdry PUR seal

Weber Podlahy - skladba podlahy s hydroizolační membránou weberdry PUR seal

PDF | DWG | DXF | DWF

Weber podlahy- skladba podlahy napojení na stěny a sokly - nedilatovaná

Weber podlahy- skladba podlahy napojení na stěny a sokly - nedilatovaná

PDF | DWG | DXF | DWF

Weber podlahy - skladba podlahy napojení na stěny a sokly - dilatující keramický sokl

Weber podlahy - skladba podlahy napojení na stěny a sokly - dilatující keramický sokl

PDF | DWG | DXF | DWF

Weber podlahy - skladba podlahy napojení na stěny a sokly - dilatující

Weber podlahy - skladba podlahy napojení na stěny a sokly - dilatující

PDF | DWG | DXF | DWF

Sanace

Weber - sanační omítkový systém SUPER - weber.san super

Weber - sanační omítkový systém SUPER - weber.san super

PDF | DWG | DXF | DWF

Weber - sanační omítkový systém SUPER - weber.san super

Weber - sanační omítkový systém THERMO - weber.san thermo

PDF | DWG | DXF | DWF

Weber - sanace betonu - betonová plocha s dopravním zatížením

Weber - sanace betonu - betonová plocha s dopravním zatížením

PDF | DWG | DXF | DWF

Weber - sanační systém - sanace nepodsklepených objektů z interiéru - injektáž

Weber - sanační systém - sanace nepodsklepených objektů z interiéru - injektáž

PDF | DWG | DXF | DWF

Weber - sanační systém - sanace betonu a železobetonu

Weber - sanační systém - sanace betonu a železobetonu

PDF | DWG | DXF | DWF

Weber - sanační systém - sanace podsklepených objektů z interiéru - injektáž - klenba pod úrovní terénu - rekonstrukce

Weber - sanační systém - sanace podsklepených objektů z interiéru - injektáž - klenba pod úrovní terénu - rekonstrukce

PDF | DWG | DXF | DWF

Weber - sanační systém - dodatečná vnější bitumenová hydroizolace izolace - sklepních obvodových stěn - rekonstrukce - injektáž z exteriéru

Weber - sanační systém - dodatečná vnější bitumenová hydroizolace izolace - sklepních obvodových stěn - rekonstrukce - injektáž z exteriéru

PDF | DWG | DXF | DWF

Weber - sanační systém - obecný návrh sanace opukového zdiva - exteriér

Weber - sanační systém - obecný návrh sanace opukového zdiva - exteriér

PDF | DWG | DXF | DWF

Weber - sanační systém - izolace soklu u podsklepené novostavby

Weber - sanační systém - izolace soklu u podsklepené novostavby

PDF | DWG | DXF | DWF

Weber - sanační systém - horizontální injektáž kamenného zdiva z interiéru + povlaková izolace z exteriéru

Weber - sanační systém - horizontální injektáž kamenného zdiva z interiéru + povlaková izolace z exteriéru

PDF | DWG | DXF | DWF

Weber - sanační systém - hydroizolace sklepních prostor - oboustranná - smíšené zdivo

Weber - sanační systém - hydroizolace sklepních prostor - oboustranná - smíšené zdivo

PDF | DWG | DXF | DWF

Weber - sanační systém - oboustranná injektáž zdiva u nepodsklepeného objektu

Weber - sanační systém - oboustranná injektáž zdiva u nepodsklepeného objektu

PDF | DWG | DXF | DWF

Weber - sanační systém - hydroizolace obvodové zdi - injektáž z interiéru

Weber - sanační systém - hydroizolace obvodové zdi - injektáž z interiéru

PDF | DWG | DXF | DWF

Weber - sanační systém - injektáž podsklepené budovy z interiéru

Weber - sanační systém - injektáž podsklepené budovy z interiéru

PDF | DWG | DXF | DWF

Weber - sanační systém - oboustranná injektáž zdiva šíře větší než 60cm

Weber - sanační systém - oboustranná injektáž zdiva šíře větší než 60cm

PDF | DWG | DXF | DWF

Koupelny

Weber podlahy - hydroizolace koupelen a sprchových koutů - detail vpusti

Weber podlahy - hydroizolace koupelen a sprchových koutů - detail vpusti

PDF | DWG | DXF | DWF

Weber podlahy - hydroizolace podlahy v koupelně - Rigidur

Weber podlahy - hydroizolace podlahy v koupelně - Rigidur

PDF | DWG | DXF | DWF

Weber podlahy - hydroizolace podlahy v koupelně - Rigistabil

Weber podlahy - hydroizolace podlahy v koupelně - RigiStabil

PDF | DWG | DXF | DWF

Weber - hydroizolace koupelen a sprchových koutů - SDK konstrukce

Weber - hydroizolace koupelen a sprchových koutů - SDK konstrukce

PDF | DWG | DXF | DWF

Weber podlahy - hydroizolace podlahy v koupelně - SDK konstrukce - odtok

Weber podlahy - hydroizolace podlahy v koupelně - SDK konstrukce - odtok

PDF | DWG | DXF | DWF

Weber - hydroizolace koupelen a sprchových koutů - zděná konstrukce

Weber - hydroizolace koupelen a sprchových koutů - zděná konstrukce

PDF | DWG | DXF | DWF

Weber podlahy - hydroizolace podlahy v koupelně - zděná konstrukce - odtok

Weber podlahy - hydroizolace podlahy v koupelně - zděná konstrukce - odtok

PDF | DWG | DXF | DWF

Bazény

Weber - polyuretanový hydroizolační systém - vodní nádrže - nádrže na pitnou vodu, ČOV

Weber - polyuretanový hydroizolační systém - vodní nádrže - nádrže na pitnou vodu, ČOV

PDF | DWG | DXF | DWF

Omítkové řešení

Weber - omítkový systém - vnitřní vápenná omítka

Weber - omítkový systém - vnitřní lehčená omítka

PDF | DWG | DXF | DWF

Weber - omítkový systém - vnitřní vápenná omítka

Weber - omítkový systém - vnitřní vápenocementová omítka

PDF | DWG | DXF | DWF

Weber - omítkový systém s břizolitovou omítkou - tepelně izolační keramické zdivo s obj. hmotností < 650kg/m3

Weber - omítkový systém s břizolitovou omítkou - tepelně izolační keramické zdivo s obj. hmotností < 650kg/m3

PDF | DWG | DXF | DWF

Weber - omítkový systém s pastovitou omítkou - tepelně izolační keramické zdivo s obj. hmotností < 650kg/m3

Weber - omítkový systém s pastovitou omítkou - tepelně izolační keramické zdivo s obj. hmotností < 650kg/m3

PDF | DWG | DXF | DWF

Weber - omítkový systém s fasádním nátěrem - tepelně izolační keramické zdivo s obj. hmotností < 650kg/m3

Weber - omítkový systém s fasádním nátěrem - tepelně izolační keramické zdivo s obj. hmotností < 650kg/m3

PDF | DWG | DXF | DWF

Weber - omítkový systém s břizolitovou omítkou - tepelně izolační porobetonové zdivo s obj. hmotností <= 350kg/m3

Weber - omítkový systém s břizolitovou omítkou - tepelně izolační porobetonové zdivo s obj. hmotností <= 350kg/m3

PDF | DWG | DXF | DWF

Weber - omítkový systém s pastovitou omítkou - tepelně izolační porobetonové zdivo s obj. hmotností <= 350kg/m3

Weber - omítkový systém s pastovitou omítkou - tepelně izolační porobetonové zdivo s obj. hmotností <= 350kg/m3

PDF | DWG | DXF | DWF

Weber - omítkový systém s fasádním nátěrem - tepelně izolační porobetonové zdivo s obj. hmotností <= 350kg/m3

Weber - omítkový systém s fasádním nátěrem - tepelně izolační porobetonové zdivo s obj. hmotností <= 350kg/m3

PDF | DWG | DXF | DWF

Weber - omítkový systém provětrávaných fasád Rigips - Glasroc X - svislá dilatace

Weber - omítkový systém provětrávaných fasád Rigips - Glasroc X - svislá dilatace

PDF | DWG | DXF | DWF

Weber - omítkový systém provětrávaných fasád Rigips - Glasroc X - okno - nadpraží parapet

Weber - omítkový systém provětrávaných fasád Rigips - Glasroc X - okno - nadpraží parapet

PDF | DWG | DXF | DWF

Weber - omítkový systém provětrávaných fasád Rigips - Glasroc X - obklad přesahu střechy na kovové konstrukci

Weber - omítkový systém provětrávaných fasád Rigips - Glasroc X - obklad přesahu střechy na kovové konstrukci

PDF | DWG | DXF | DWF

Weber - omítkový systém provětrávaných fasád Rigips - Glasroc X - přesah střechy

Weber - omítkový systém provětrávaných fasád Rigips - Glasroc X - přesah střechy

PDF | DWG | DXF | DWF

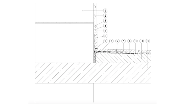
Weber - omítkový systém provětrávaných fasád Rigips - Glasroc X - napojení na atiku

Weber - omítkový systém provětrávaných fasád Rigips - Glasroc X - napojení na atiku

PDF | DWG | DXF | DWF

Weber - omítkový systém provětrávaných fasád Rigips - Glasroc X - založení v oblasti soklu

Weber - omítkový systém provětrávaných fasád Rigips - Glasroc X - založení v oblasti soklu

PDF | DWG | DXF | DWF

Weber - omítkový systém provětrávaných fasád Rigips - Glasroc X - kout

Weber - omítkový systém provětrávaných fasád Rigips - Glasroc X - kout

PDF | DWG | DXF | DWF

Weber - omítkový systém provětrávaných fasád Rigips - Glasroc X - nároží

Weber - omítkový systém provětrávaných fasád Rigips - Glasroc X - nároží

PDF | DWG | DXF | DWF

tepelně izolační omítka a nátěr

Weber - omítkový systém tepelně izolační omítka a nátěr

PDF | DWG | DXF | DWF

tepelně izolační jádrová omítka a tenkovrstvá omítka

Weber - omítkový systém tepelně izolační jádrová omítka a tenkovrstvá omítka

PDF | DWG | DXF | DWF

akustická omítka

Weber - omítkový systém- akustická omítka

PDF | DWG | DXF | DWF